| サンパレス長谷川Ⅱ | |||
| 物 件 種 類 | アパート | ||
| 物件所在地 | 秋田市桜1丁目7-16 | ||
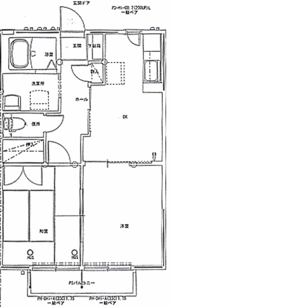
| 間 取 り | 2DK | 主 要 居 室 | 洋6・和6・・DK6 |
| 建 物 構 造 | 軽量鉄骨 | 築 年 月 | 平成14年9月 |
| バ ス | ユニットバス | ト イ レ | 水洗 |
| 家 賃 | 49,000円 | 敷 金 | 49,000円 |
| 礼 金 | 0円 | 管理費(共益費) | 0円 |
| 仲 介 料 | 53,900円 | 賃 貸 保 証 料 | 39,200円 |
| 駐 車 場 | 1台込み | 駐 車 場 代 | 0円 |
| 権 利 金 | 0円 | 入居可能日 | 即入居可 |
| 取 引 様 態 | 仲介 | 貸 家 権 | 一般 |
| 設 備 | プロパンガス CNAインターネット配線有り、BS 、 エアコン 、シャンプードレッサー シューズボックス、デジタルキー、物置 ネット使い放題 |
||
| 備 考 | 火災保険料16,000円 法人契約:礼金1ヶ月 賃貸保証料無し 秋田駅東口 日赤病院 大学病院 秋田自動車道中央IC アクセス良! |
||

















